
מדידת פנים מדוייקת המשקפת את מה שקיים תחסוך לכם בעלויות ותדייק את העלויות העתידיות וזמני הבנייה של הפרויקט שלכם.
.png)
הכנת תוכניות מדידה מפורטות ומשורטטות לפי שכבות וסמנים אדריכליים.

ביצוע מדידה באמצעות סורקי לייזר מתקדמים לרמת דיוק מקסימלית.
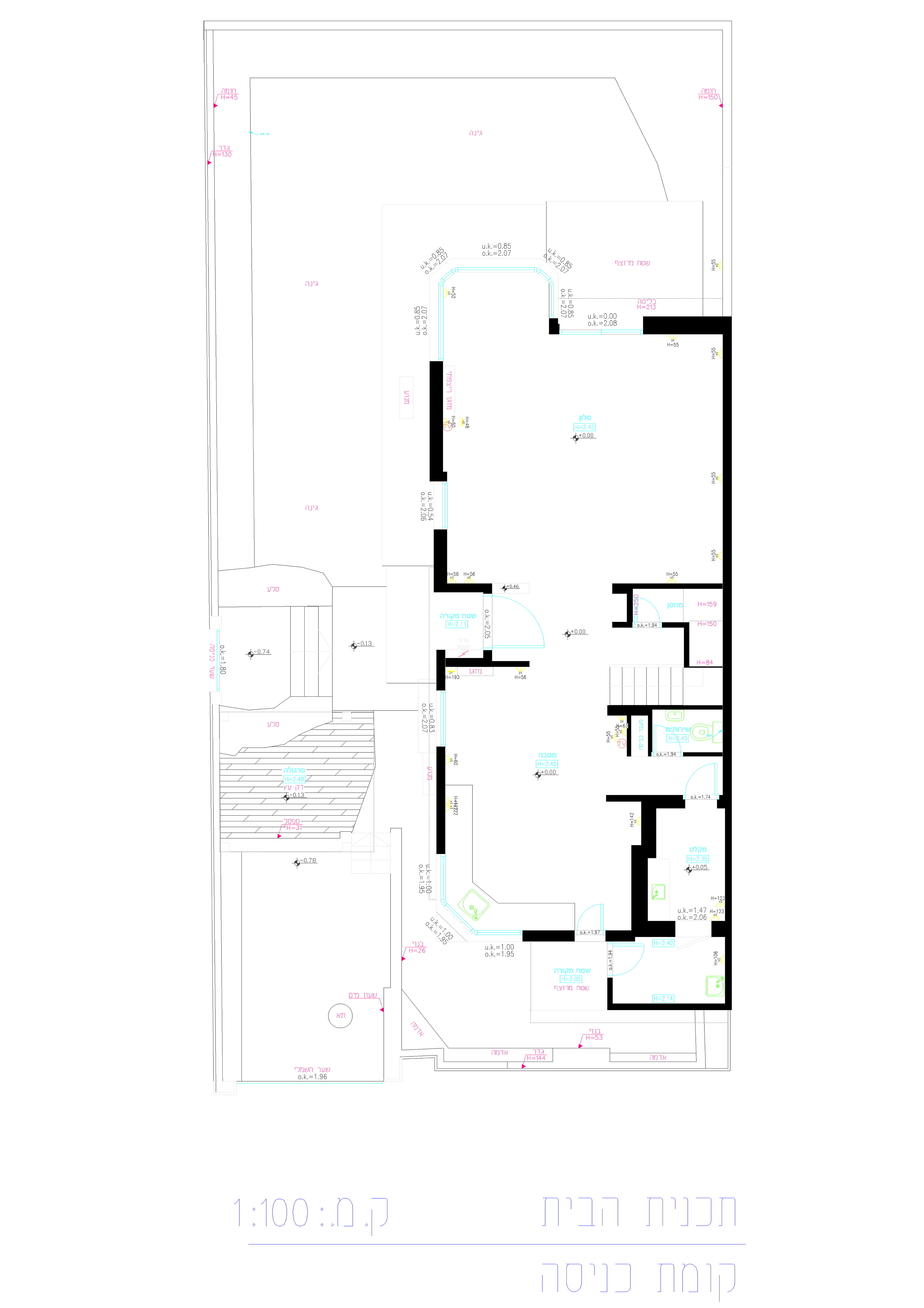
מדידה אדריכלית (As-Made) הינו תיעוד מדויק של המצב הקיים בנכס — קירות, פתחים, תקרות, מפלסים ותשתיות —המשמש בסיס לתכנון, תיאום יועצים ורישוי, מצמצם טעויות וחוסך זמן ועלויות, ונדרש במיוחד לפני שיפוץ/הסבה/רכישה או בסיום ביצוע. התוצר שנמסר כולל קובץ DWG וקובץ PDF של תוכניות מצב קיים בקנ״מ (ולפי צורך גם חתכים/חזיתות), ובנוסף חבילת תמונות פנורמיות °360 לכל הנכס לתיעוד ושיתוף מהיר עם כל הגורמים.

מדידה לרישוי עסק היא מדידה אדריכלית מלאה (As-Made) המיועדת למפעלים, חנויות, סופרמרקטים ומחסנים וכו', ובה אנו מודדים לא רק את המעטפת, הקירות, הפתחים והמערכות הגלויות אלא גם את כל הציוד הרלוונטי בעסק: מדפים, מקררים, מקפיאים, עמדות קופה, מכונות וקווי ייצור, מסועים, אזורי אחסון ומעברים. התיעוד המדויק הזה יוצר בסיס מהימן לעמידה בדרישות רישוי ורשויות (בטיחות, נגישות, כיבוי אש ותברואה), לתכנון חשמל/מיזוג/ספרינקלרים, לארגון זרימת עבודה, להגדרת רוחבי מעברים ודרכי מילוט, ולמניעת פערים בביקורות. התוצאה מקצרת זמני היתרים, מצמצמת טעויות ועלויות התאמות, ומשפרת תפעול יומיומי. התוצר שתקבלו הוא קבצי DWG ו-PDF מעודכנים של מצב קיים, ובנוסף תמונות פנורמיות °360 לכל הנכס לשיתוף מהיר עם מתכננים, יועצים ורשויות.
מדידות לצורכי חישובי שטחים נועדו להפיק תמונת-מצב כמותית ומדויקת של הנכס: מעטפת, נטו חללים, עובי קירות, שטחים משותפים, מרפסות וגלריות—לפי שיטת החישוב הנדרשת (ברוטו/נטו/שטח עיקרי/שירות/משותף). התוצר כולל תשריט מצב קיים וקבצי DWG+PDF לצד טבלת שטחים מסכמת









Lorem ipsum dolor sit amet, consectetur adipiscing elit. Suspendisse varius enim in eros elementum tristique.
Duis cursus, mi quis viverra ornare, eros dolor interdum nulla, ut commodo diam libero vitae erat.
Aenean faucibus nibh et justo cursus id rutrum lorem imperdiet. Nunc ut sem vitae risus tristique posuere.

Lorem ipsum dolor sit amet, consectetur adipiscing elit. Suspendisse varius enim in eros elementum tristique.
Duis cursus, mi quis viverra ornare, eros dolor interdum nulla, ut commodo diam libero vitae erat.
Aenean faucibus nibh et justo cursus id rutrum lorem imperdiet. Nunc ut sem vitae risus tristique posuere.
.jpg)
איזה שירותים אנו מציעים?
אנו מתמחים במתן שירותי מדידות פנים מדויקות והפקת תוכניות עדכניות למגוון צרכים – תוכניות לרישיון עסק, בטיחות באש, עיצוב פנים, חישובי שטחים, ארנונה ועוד. השירות שלנו כולל ליווי מקצועי, תכנון ברור ותוצר מדויק לשימוש אדריכלים, יועצים ולקוחות קצה.
באיזה ציוד מתבצעת המדידה?
לצד ציוד מדידה בסיסי כמו מד לייזר וסרט מדידה, אנו משתמשים בסורקי תלת-ממד מתקדמים ברמת דיוק של עד 0.03 מ״מ.
הסורקים מאפשרים לנו למדוד בצורה מדויקת גם חללים לא נגישים, תקרות גבוהות, קירות לא סימטריים ועוד – כדי להבטיח תוצאה מדויקת, אמינה וברורה לכל פרויקט.
מתי נדרש לבצע מדידת פנים?
מדידת פנים היא שלב חיוני בתחילת כל פרויקט – בין אם מדובר בעיצוב פנים, רישיון עסק, שיפוץ או התאמת מבנה קיים לדרישות רגולציה.
במקרים רבים, התוכניות הקיימות אינן משקפות את המצב בפועל – ולכן יש צורך במדידה מקצועית, מדויקת ועדכנית, שתשמש בסיס לתכנון נכון, יעיל ונטול הפתעות.
כמה זמן אורכת מדידה?
משך זמן המדידה משתנה בהתאם לגודל הנכס ורמת הפירוט הנדרשת. ברוב המקרים, מדידה מלאה אורכת בין 3 ל-4 שעות, וכוללת תיעוד מלא של החלל לפי צורכי הלקוח.
באילו אזורים ניתן להזמין מדידה?
ביקור360 פועלת בפריסה ארצית מלאה – ניתן להזמין מדידה בכל אזור בארץ, בתיאום מראש.
באילו פורמטים תקבלו את התוכניות?
לאחר סיום המדידה והפקת התוכניות, תקבלו:
קובץ PDF – לעיון נוח מכל מכשיר
קובץ DWG – בפורמט מקצועי לעבודה עם אדריכלים ומתכננים
קובץ ה-DWG מהווה את הבסיס לכל שלב תכנוני בהמשך.
איך מתבצע תהליך העבודה?
התהליך פשוט, יעיל ומדויק:
קביעת מועד מדידה – יוצרים איתנו קשר, קובעים מועד נוח, ומודד מוסמך מגיע עם ציוד מתקדם כולל סורק תלת-ממד.
סריקה ועיבוד – לאחר המדידה אנו מפיקים את התוכניות לפי הצרכים והדרישות הספציפיות של הלקוח.
קבלת הקבצים – מקבלים את התוכניות בפורמט PDF ו-DWG, מוכנות לשימוש בכל שלב בתהליך התכנון, ההגשה או ההיתרים.